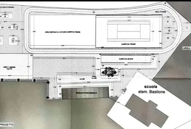
MILAZZO - Sarà inaugurato a Milazzo lunedì 31 luglio alle 19,30 dal sindaco Pippo Midili, il parco sportivo di Bastione finanziato lo scorso anno dall’Assessorato regionale alla Famiglia per complessivi 600.000 euro. La ditta “Opera Appalti srl” di Torregrotta ha completato i lavori che consentiranno di mettere a disposizione della comunità una struttura all’avanguardia, un vero centro di aggregazione con campo da tennis munito di tutte le attrezzature necessarie e illuminazione anche per usi notturni; pista di running lunga circa 250 metri dotata di idonea pavimentazione drenante, campo da bocce (ml. 28,40 x 4,60) anch’esso attrezzato ed illuminato.
Ai margini del campo da tennis è stata posizionata l’area con giochi per fruitori di tutte le età, affiancata da un’area fitness munita di attrezzature ginniche che si possono mantenere all’area aperta ed anch’essa dotata di illuminazione. Le zone intorno ai campi sono state in parte pavimentate e in parte sistemate a verde. Realizzato anche un corpo prefabbricato di circa 160 metri quadrati, destinato a spogliatoi climatizzati e servizi igienici anche per disabili. L’intera area comunale, ubicata sul retro della scuola elementare Bastione, è stata recintata in modo da essere protetta e salvaguardata con il relativo parcheggio annesso.











