-
Riposto, due giovani atleti ai campionati mondiali di powerlifting. Vasta: “Orgogliosi dei nostri concittadini”
RIPOSTO - È stata ricevuta nei giorni scorsi dal sindaco di Riposto Davide Vasta e dall’assessore allo Sport Carmelo D’Urso Martina Fortuna, 20 anni, selezionata dalla nazionale per rappresentare l’Italia ai mondiali di powerlifting, che si sono aperti ieri in Romania. Disciplina sportiva competitiva, suddivisa in tre esercizi (squat, distensione ... -
Sant’Alfio, questa sera sindaco e assessori in campo per dare ‘Un calcio alla violenza’. Presenti ...
SANT'ALFIO - Fischio d’inizio alle ore 20, questa sera, nei campetti ‘Prato verde’ di Sant’Alfio, per la partita di calcio tra la squadra formata da componenti della locale amministrazione comunale, guidata dal sindaco Alfio La Spina, e una formazione composta dai ragazzi dell’associazione sportiva dilettantistica santalfiese. La manifestazione, denominata ‘Un ... -
Riposto, ancora un podio per i giovanissimi ballerini Carola Daidone e Rosario Puglisi. Argento ai ...
RIPOSTO - Il mondo delle danze latino-americane continua a regalare riconoscimenti ai giovani talenti ripostesi Carola Daidone e Rosario Puglisi, promettenti ballerini di soli 14 anni. Dopo l'entusiasmante stagione di competizioni, culminate con il trionfo dei Campioni Nazionali Cids poco più di un mese fa, la straordinaria dedizione li ha ... -
Santa Venerina: bimbo di tre anni annega nella piscina di casa
SANTA VENERINA -Un bambino di tre anni è morto annegato, ieri pomeriggio, dopo essere caduto in una piccola piscina di casa a Santa Venerina. Il piccolo era in compagnia di un'amichetta mentre la nonna materna era a pochi metri in cucina. E' annegato in pochi centimetri d'acqua. Quando la donna ... -
Catania FC, meno di un mese al via della stagione: tra calendario, preparazione e mercato ...
CATANIA FC - L'atmosfera è calda, anche se non ancora bollente, l'attesa cresce, la voglia di scendere in campo sale: manca ormai meno di un mese all'inizio ufficiale della stagione del Catania FC. Una squadra che si è giustamente rinnovata per affrontare una Serie C che presenta un coefficiente di ... -
Acireale Calcio, campagna abbonamenti: domani mattina conferenza stampa di presentazione al Palazzo di Città
ACIREALE CALCIO - 𝗟𝘂𝗻𝗲𝗱𝗶̀ 𝟳 𝗮𝗴𝗼𝘀𝘁𝗼, 𝗮𝗹𝗹𝗲 𝟭𝟬:𝟯𝟬, presso la 𝘀𝗮𝗹𝗮 𝘀𝘁𝗮𝗺𝗽𝗮 𝗱𝗲𝗹 𝗣𝗮𝗹𝗮𝘇𝘇𝗼 𝗱𝗶 𝗖𝗶𝘁𝘁𝗮̀ 𝗱𝗶 𝗔𝗰𝗶𝗿𝗲𝗮𝗹𝗲, la SSD Città di Acireale presenterà la 𝗰𝗮𝗺𝗽𝗮𝗴𝗻𝗮 𝗮𝗯𝗯𝗼𝗻𝗮𝗺𝗲𝗻𝘁𝗶 𝗽𝗲𝗿 𝗹𝗮 𝘀𝘁𝗮𝗴𝗶𝗼𝗻𝗲 𝟮𝟬𝟮𝟯-𝟮𝟰. All’appuntamento presenzieranno, per la Società, il 𝗗𝗶𝗿𝗲𝘁𝘁𝗼𝗿𝗲 𝗚𝗲𝗻𝗲𝗿𝗮𝗹𝗲 𝗣𝗮𝘀𝗾𝘂𝗮𝗹𝗲 𝗟𝗲𝗼𝗻𝗮𝗿𝗱𝗼, e la 𝗥𝗲𝘀𝗽𝗼𝗻𝘀𝗮𝗯𝗶𝗹𝗲 𝗠𝗮𝗿𝗸𝗲𝘁𝗶𝗻𝗴, 𝗕𝗶𝗴𝗹𝗶𝗲𝘁𝘁𝗲𝗿𝗶𝗮 𝗲 𝗔𝗰𝗰𝗿𝗲𝗱𝗶𝘁𝗶 𝗚𝗿𝗮𝘇𝗶𝗮 𝗩𝗶𝗻𝗰𝗶, ... -
Catania FC, svelata anche la seconda maglia: un manto bianco e nero di neve e ...
CATANIA FC - Continuano a fioccare le novità in casa Catania FC: dopo la presentazione della prima maglia per la prossima stagione, ecco svelata la divisa da trasferta. Qui il commento sul kit away da parte della società rossazzurra: "Un manto bianco su cui trionfa una scia rossazzurra. La nostra ... -
REGIONE SICILIANA E SPORT, AL VIA LE DOMANDE PER I VOUCHER RIVOLTI AI GIOVANI FINO ...
REGIONE SICILIA - Al via le domande per l'assegnazione dei voucher destinati dall'assessorato regionale dello Sport ai minori di età compresa tra i 6 e i 16 anni che svolgono attività sportiva e fanno parte di nuclei familiari con Isee non superiore a 12 mila euro annui. È stato pubblicato, ... -
Catania FC, presentata la maglia per il 2023/24: spiccano strisce rossazzurre strette e dettagli neri
CATANIA FC - La nuova stagione, la 2023-24, è sempre più vicina e in casa Catania FC è tempo di novità, non solo per ciò che concerne il parco giocatori ma anche a livello stilistico e identitario. In tal senso, quest'oggi la società siciliana ha ufficialmente presentato la nuova maglia ... -
Catania FC, arrivederci e grazie capitan Ciccio Lodi: fine di un viaggio fantastico
CATANIA FC - La gratitudine, l'affetto e un viaggio: tutti elementi accomunati all'interno di una grande, unica e inimitabile storia, che ha legato un uomo a dei colori e soprattutto ad un rettangolo verde dove far rotolare un pallone. L'uomo in questione è Francesco Lodi, per tutti "Ciccio", i colori ... -
Catania FC, procede il lavoro della squadra di Tabbiani: in archivio la prima settimana di ...
CATANIA FC - Con il quattordicesimo allenamento, in mattinata, si è conclusa la prima settimana di lavoro in ritiro del Catania FC 2023/24, agli ordini di mister Tabbiani e dell’intero staff tecnico della prima squadra. Sul piano atletico, in questi primi giorni di attività, nelle sessioni mattutine (due delle quali ... -
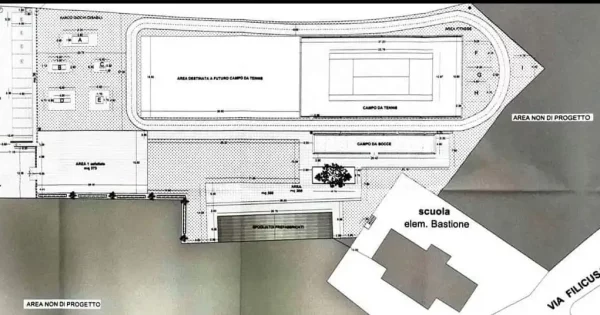
Milazzo, lunedì 31 l’inaugurazione del Parco sportivo di Bastione
MILAZZO - Sarà inaugurato a Milazzo lunedì 31 luglio alle 19,30 dal sindaco Pippo Midili, il parco sportivo di Bastione finanziato lo scorso anno dall’Assessorato regionale alla Famiglia per complessivi 600.000 euro. La ditta “Opera Appalti srl” di Torregrotta ha completato i lavori che consentiranno di mettere a disposizione della ...














